Петроградский район

Визионер

 
площадь

от 41.2 м²

 
завершение

3кв 2028 г

 
стоимость

от 31.3 млн

Проект расположен в историческом центре Петербурга — Петроградском районе. Рядом расположены детские сады и школы, медицинские учреждения, магазины, ресторан. До метро Чкаловская можно добраться за 10 минут пешком.

В проекте представлено 225 квартир площадью от 32 до 147 метров. Сдаются они без стен, с увеличенными окнами и высотой потолков 3 метра. На верхних этажах расположены квартиры с террасами.

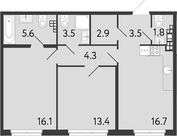
ТИПОВЫЕ ПЛАНИРОВКИ ОБЪЕКТОВ

2Е-к.кв

Площадь от 41.2 м2

от 31.323.403 руб

3Е-к.кв

Площадь от 67.7 м2

от 47.745.806 руб

4Е-к.кв

Площадь от 95 м2

от 52.059.293 руб

ипотечный калькулятор

укажите параметры и рассчитайте ежемесячный платеж

31 400 000 78 300 000
20% 100%
1
1 30
* Расчёты не являются публичной офертой. Конечные условия кредитования определяются банком после рассмотрения заявки
Пожалуйста, укажите телефон
Согласен с политикой конфиденциальности
Необходимо согласие

Визионер ЭТО

Архитектором разработан эксклюзивный паттерн, который отражает визионерский нрав дома и прослеживается в каждом его уголке. Это пиксельная графика, напоминающая шахматную клетку.

Территория полностью огорожена и охраняется круглосуточно, установлено видеонаблюдение. Вход в парадные возможен только со стороны двора. Проход осуществляется с помощью электронного ключа, вынимать телефон или брелок из кармана не придется, так как доступ бесконтактный.

Грубая и тонкая фильтрация, сорбционная очистка и ультрафиолетовое обеззараживание. Система гарантирует
питьевое качество как холодной, так и горячей воды.


ОНЛАЙН КОНСУЛЬТАЦИЯ

получите больше информации о проекте
и задайте свои вопросы

НЕ НАШЛИ ПОДХОДЯЩЕЕ?

Укажите параметры недвижимости, и мы подберем варианты в течение дня бесплатно

Пожалуйста, укажите телефон
Согласен с политикой конфиденциальности
Необходимо согласие
Написать в мессенджер